Et tilbud med “all inclusive”
– Tiny House i træ til halv pris
I 2022 stod vi med, hvad vi troede skulle være Tiny Choice’s første model på markedet. Nemlig model Family 2022. I samarbejde med vores producent, fik vi produceret 20 eksemplarer til et kommende projekt, men af forskellige årsager, blev projektet ikke ført ud i livet. Det kan du nu drage fordel af. Du kan finde informationer om Model Family 2022 på denne side og tage endelig fat på på os, hvis du ønsker flere informationer.
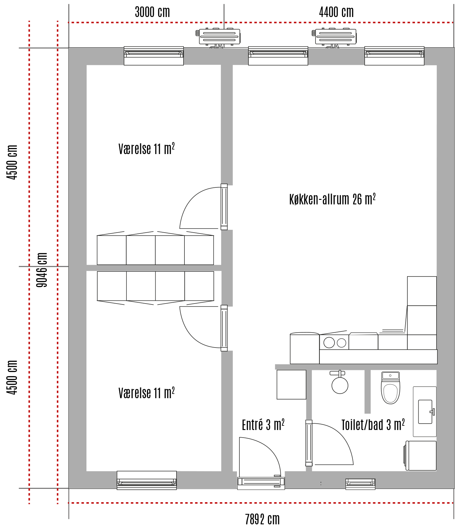
Udgået model fra Tiny Choice “MODEL FAMILY 2022”, sælges nu til halv pris. 67 kvm bolig med solceller, varmepumpe, Genvex-ventilation, klar til indflytning, leveringstid kun 8-14 dage. KUN 498.000 DKK
Model FAMILY 2022
Denne moderne bolig på 67 m² er sammensat af to funktionelle moduler og rummer alt, hvad den moderne familie har brug for – i et kompakt, effektivt og gennemtænkt layout. Boligen er ideel som fritliggende enhed eller som del af rækkehusbebyggelse. Indretningen er lys og venlig med store vinduespartier, som giver et fantastisk dagslysindfald og skaber en behagelig rumfornemmelse i hele boligen. De åbne rumforløb og nøje udvalgte materialer understøtter en afslappet og stilren atmosfære. Boligen er opført med præfabrikerede træelementer, hvilket giver en høj grad af præcision, energieffektivitet og et ensartet finish. Den er designet til lavt energiforbrug og minimalt vedligehold. Kontakt os for mere viden om model Family 2022
Prøvehuset i Engesvang
Prøvehuset afviger en smule, fra de færdigebyggede 2o eksemplarer af model Family 2022. Man valgte i tidernes morgen, at lægge et laminatgulv ovenpå det eksisterende gulv i prøvehuset. Det eksisterende gulv er et sortnistret linoleumsgulv, i en lækker og gennemgående kvalitet, i hele huset. Ligeledes er udstillingsmodellen udstyret med en terassedør, hvor der vil være 3 ens vinduer. Terassen er ligeledes tilkøb.









